Detached Villa in Calahonda
Mijas Costa, Málaga
1,650,000€
Summary
- Reference: R5166562
- Town: Mijas Costa
- Location: Calahonda
- Property Type: Detached Villa
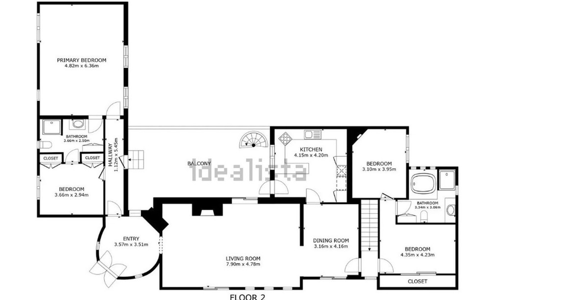
- Area: 227 m2
- Plot: 1,287 m2
- Beds: 7
- Baths: 3
- Original price: 1,800,000€
Property Description
Spectacular Villa for Sale in Calahonda! We invite you to take a look at the home staging and discover all the potential this villa has to offer.
This impressive property features 12 rooms in total, currently laid out as 7 bedrooms, offering tremendous potential to adapt the space to your needs. Beyond its 227 m², the villa includes a spacious lower level, providing remarkable extra living space and versatility—perfect for a home cinema, games room, independent apartment, additional bedrooms, or any project you can imagine.
Discover this magnificent property, a true gem on the real estate market. With spacious, light-filled rooms, a recently renovated kitchen, and large windows that bring elegance and character, every corner of this villa is designed to be fully enjoyed.
The villa stands out for its unique architectural features, such as vaulted ceilings that enhance natural light and stained-glass details at the entrance, giving it a refined and timeless style. Its majestic presence awaits a new owner ready to unlock its full potential. A cozy fireplace adds warmth and personality to the home.
Outside, enjoy a private pool, exclusive parking, and the serenity offered by high privacy, as the villa is located at the end of the street. This makes it ideal for a boutique hotel, guesthouse, private activities, or simply a luxurious, secluded family residence.
With a vintage style, wooden columns, and two completely separate wings—each with two internal floors and up to three external levels—this property is perfect as a primary residence, holiday home, or hospitality project.
Located just minutes from the A7 and AP7, it offers excellent connectivity while maintaining privacy thanks to large pine trees and mature landscaping.
This villa combines space, versatility, and privacy, making it a unique opportunity not to be missed. Call now to arrange your visit!
Features
- Setting: Commercial Area, Close To Shops, Close To Sea, Close To Town, Close To Forest
- Orientation: North, North East, East, South East, South, South West, West, North West
- Condition: Good
- Pool: Private
- Climate Control: Air Conditioning
- Views: Garden, Pool, Courtyard, Forest
- Features: Private Terrace, Utility Room
Request more information
Elvira Meraki
With more than 20 years of expertise, we're your key to finding your perfect home, more than just a house, it's a partnership for life, guiding you every step of the way.
- Spain: +34 677 14 99 08
- Denmark: +45 31 77 71 72
- Email: hola@elvirameraki.com