Detached Villa in Cerros del Aguila
Mijas, Málaga
720,000€
Summary
- Reference: R5187919
- Town: Mijas
- Location: Cerros del Aguila
- Property Type: Detached Villa
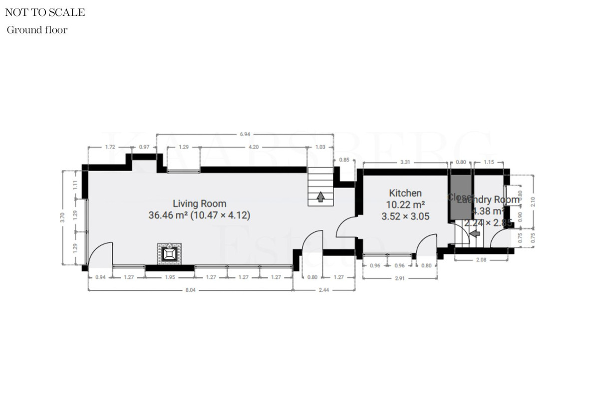
- Area: 148 m2
- Beds: 3
- Baths: 2
- Garage: Yes
Property Description
Excellent Investment Opportunity – Detached Villa in Cerros del Aguila
This charming 3-bedroom, 2-bathroom villa in Cerros del Aguila offers great potential for both private buyers and investors. Situated in a peaceful residential area close to golf, town, and amenities.
The property features 148 m² of living space plus a 47 m² south-facing terrace with sun all day. It includes a fully fitted kitchen, bright living areas, a private pool, and a basement with multiple possibilities.
This is an older villa that requires some TLC - ideal for modernisation or renovation, making it a smart investment with room for added value.
Additional highlights include a private garden, garage and underground parking for several cars, and its location within a well-established urbanisation just minutes from Fuengirola and Mijas.
Detached Villa, Cerros del Aguila, Costa del Sol.
3 Bedrooms, 2 Bathrooms, Built 148 m², Terrace 47 m².
Setting : Suburban, Close To Golf, Close To Town, Urbanisation.
Orientation : South.
Condition : Renovation Required.
Pool : Private.
Features : Covered Terrace, Private Terrace, Basement.
Kitchen : Fully Fitted.
Garden : Private.
Parking: Underground, Garage, More Than One, Private.
Category : Resale.
Features
- Setting: Suburban, Close To Golf, Close To Town, Urbanisation
- Orientation: South
- Condition: Good, Fair, Renovation Required
- Pool: Private
- Features: Covered Terrace, Private Terrace, Basement
- Kitchen: Fully Fitted
- Garden: Private
- Parking: Underground, Garage, More Than One, Private
- Category: Resale
Request more information
Elvira Meraki
With more than 20 years of expertise, we're your key to finding your perfect home, more than just a house, it's a partnership for life, guiding you every step of the way.
- Spain: +34 677 14 99 08
- Denmark: +45 31 77 71 72
- Email: hola@elvirameraki.com